Apartamento en Venta, Arroyo Hondo Viejo

Santo Domingo Centro > Arroyo Hondo Viejo

Resumen

Dirección:
Santo Domingo Centro > Arroyo Hondo Viejo
Precio:
US$ $99,500.00
Tipo de propiedad:
Apartamento
Estatus:
Venta
Área:
0 m2
Habitaciones:
1
Baños:
1.5
Garages:
1

Descripción de la propiedad

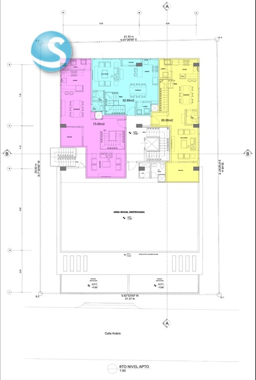
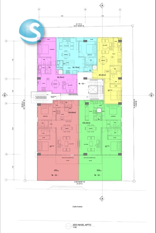
Excelente torre de apartamentos en Arroyo Hondo viejo de: 1 y 2 Habitaciones + 3 PH *Casi listos para Entregar* Diseño moderno, excelente ubicación y amenidades pensadas para vivir bien o invertir mejor. Apartamentos de 1 habitación desde US$99,500 Apartamentos de 2 habitaciones desde US$168,000 Parqueos techados Área social, gym y ascensor. Airbnb friendly regulado Muy buena ubicación: cerca del Supermercado Nacional, hermosas plazas, restaurantes, gym, colegios y parques muy cerca (a distancia a pies). Excelente Inversión!

Leer más

Características

  • Terraza
  • Garage